2367 Dover Avenue $329,900
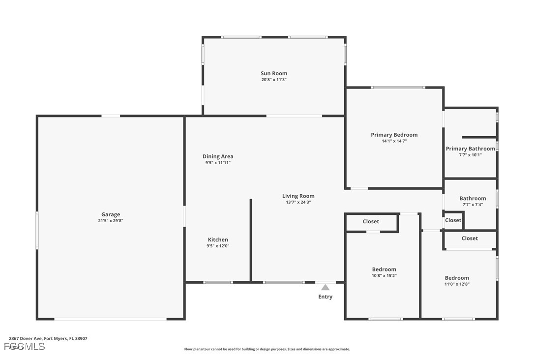
Beautiful concrete block home (NOT IN FLOOD ZONE) centrally located to shopping, restaurants, and entertainment. This 3 bedroom 2 bathroom home is wheelchair accessible & features an oversized garage, circular driveway for extra parking, newer water heater, extra storage closet with electric. There are additional cabinets and workshop in garage for all you craftsman. Roof was replaced in 2022 and A/C was replaced in 2025. The primary bedroom is spacious with a newly painted bathroom. The kitchen is retro from the 1960s and offers a glass cooktop and plenty of counter space. There is also an enclosed sunroom that is currently being used as a bonus room for an office or entertainment space. Step outside to a large backyard with plenty room & space for a pool or Spa. Mature pine trees give you some afternoon shade that you & your 4 legged friends will enjoy. The villas is a well established neighborhood located 20 minutes from SWFL International Airport, 20 minutes to the beach, and 20 minutes to downtown Fort Myers. Come and explore the possibilities this home offers today!
General Amenities
Interior Amenities
Exterior Amenities
Landscape Amenities
Community Amenities
Appliance Amenities
- Beds
- 3
- Baths
- 2.00
- Ft2
- 1,655
- Lot Acres
- 0.24
- Year Built
- 1962
- Heat
- Central,Electric
- Roof
- Shingle
Virtual Tour
2367 Dover Avenue
Fort Myers, Florida 33907
United States
Fort Myers, Florida 33907
United States
Subdivision: Fort Myers Villas
County: Lee
Sale Type: For Sale
Ref #: 2025024039
Category: Single Family
Listed by RE/MAX Realty Group on Thursday, 22 January 2026 [For Sale]
- Beds
- 3
- Baths
- 2.00
- Ft2
- 1,655
- Lot Acres
- 0.24
- Heat
- Central,Electric
- Cooling
- CentralAir,CeilingFans,Electric
- Roof
- Shingle
- Year Built
- 1962
- Garage Size
- 2
- Beds
- 3
- Baths
- 2.00
- Ft2
- 1,655
- Lot Acres
- 0.24
- Year Built
- 1962
- Heat
- Central,Electric
- Roof
- Shingle
Virtual Tour
2367 Dover Avenue
Fort Myers, Florida 33907
United States
Fort Myers, Florida 33907
United States
Subdivision: Fort Myers Villas
County: Lee
Sale Type: For Sale
Ref #: 2025024039
Category: Single Family
Listed by RE/MAX Realty Group on Thursday, 22 January 2026 [For Sale]