10804 Firebush Circle $420,000
Welcome to this well-maintained 4-bedroom home with a dedicated flex/office space, located in the quiet community of Enclaves at Eagle Landing. Built in 2022, this property offers a functional layout, modern finishes, and a convenient location close to daily necessities.
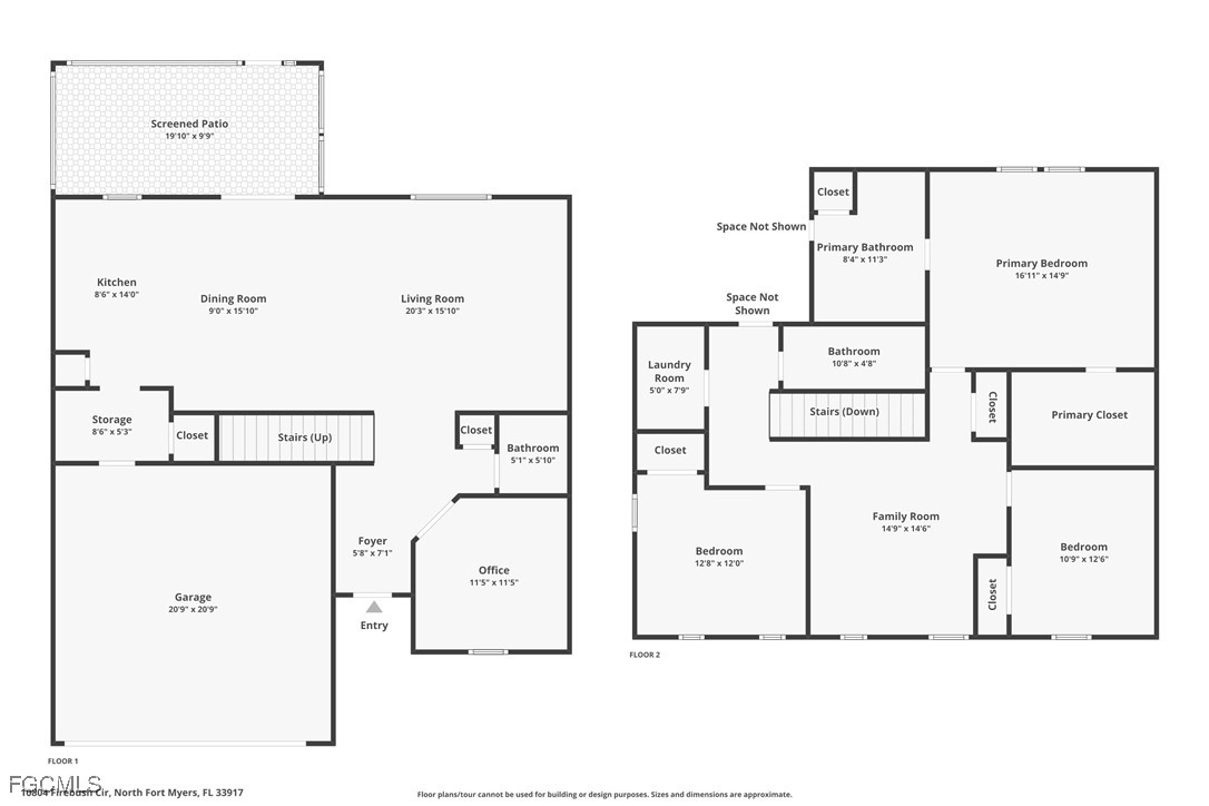
The first floor features an open-concept design with tile flooring throughout, including a spacious living area with natural light, a dining space, and a kitchen equipped with white cabinetry, granite countertops, a large island, and stainless steel appliances. A half bathroom and a versatile flex/office room are also located on the main level. Sliding doors open to a screened-in lanai with views of the lake and surrounding natural landscape. The backyard offers ample space for a future swimming pool.
The second floor includes four bedrooms, a full shared bathroom, the laundry room, and the primary suite with its own private bathroom. Carpeted flooring is featured throughout the upper level for added comfort.
Additional features include a two-car garage with a mini-split A/C unit that provides a temperature-controlled space suitable for storage, hobbies, or workspace needs.
The community offers a calm environment surrounded by multiple lakes and natural scenery. The home is located minutes from Publix, shopping and dining options, Bayshore Elementary K-8, Cape Coral Water Park, Downtown, and other local amenities.
General Amenities
Interior Amenities
Exterior Amenities
Landscape Amenities
Community Amenities
Appliance Amenities
- Beds
- 4
- Baths
- 3.00
- Ft2
- 2,402
- Lot Acres
- 0.11
- Year Built
- 2022
- Heat
- Central,Electric
- Roof
- Shingle
Virtual Tour
10804 Firebush Circle
North Fort Myers, Florida 33917
United States
North Fort Myers, Florida 33917
United States
Subdivision: ENCLAVES AT EAGLE LANDING
County: Lee
Sale Type: For Sale
Ref #: 2025021833
Category: Single Family
Listed by Hustle Bees Realty LLC on Monday, 24 November 2025 [For Sale]
- Beds
- 4
- Baths
- 3.00
- Ft2
- 2,402
- Lot Acres
- 0.11
- Heat
- Central,Electric
- Cooling
- CentralAir,Electric
- Roof
- Shingle
- Year Built
- 2022
- Garage Size
- 2
- Beds
- 4
- Baths
- 3.00
- Ft2
- 2,402
- Lot Acres
- 0.11
- Year Built
- 2022
- Heat
- Central,Electric
- Roof
- Shingle
Virtual Tour
10804 Firebush Circle
North Fort Myers, Florida 33917
United States
North Fort Myers, Florida 33917
United States
Subdivision: ENCLAVES AT EAGLE LANDING
County: Lee
Sale Type: For Sale
Ref #: 2025021833
Category: Single Family
Listed by Hustle Bees Realty LLC on Monday, 24 November 2025 [For Sale]