19650 N River Road $650,000
Nestled among beautiful oak trees, this enchanting four bedroom, three bathroom home sits on 10 acres and offers over 3,000 square feet of living space across three levels. A long private asphalt driveway off North River Road leads you to a residence full of personality and endless possibilities! With its serene setting and picturesque surroundings, this home makes you feel lost in the woods. At the same time, it is just minutes from the Caloosahatchee River, Caloosahatchee Park, The Alva School, and everything else the charming town of Alva has to offer!
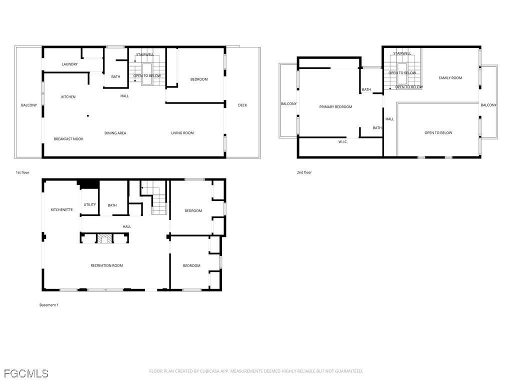
The first floor features a private entry, two bedrooms, one bathroom, a cozy living room with a fireplace, and a kitchenette. It is ideal for a MIL suite, guest quarters, or even offers potential for rental income if desired. Upstairs, French doors at the top of the wooden staircase open to the main living, dining, and kitchen areas. The kitchen has ample cabinet and countertop space, stainless steel appliances, and allows you to enjoy the scenery while dining or unwinding on the sofa after a long day. The second floor also includes another bedroom and a dedicated laundry room. Two outdoor spaces provide peaceful spots to relax and take in sweeping views of the landscape. The third floor is a sun filled retreat with a loft, the primary suite, and two more balconies that highlight the natural beauty of the property! An added bonus: there are five electric roll-down shutters that help provide privacy and let you control the light throughout the home.
This residence includes numerous updates! The well was replaced in 2020. Second and third floor air conditioning units were replaced in 2022. The water heater was replaced in March 2025. The flat roof was replaced in 2017. Impact French doors were added by the kitchen in January 2025. The septic system was pumped in November 2025. The washer and dryer remain with the home. And power is set up for a 30-amp RV hookup.
Outside you can truly enjoy incredible views from every angle! The pond, privacy, and beautifully landscaped grounds create a serene, picture perfect setting. There is plenty of room for children to play or pets to explore! A detached workshop provides endless possibilities for hobbies, projects, or storing equipment. It also includes additional attic storage. You're sure to spend time lounging on one of the many balconies, wandering the property, or watching the local wildlife! This property perfectly blends charm, potential, and tranquility. A short 15 minute drive brings you to Babcock Ranch, where shopping, dining, and entertainment await!
If you have been dreaming of a home that offers seclusion, personality, and 10 acres of natural beauty, this extraordinary Alva retreat is ready to welcome you home!
Generelle Ausstattung
Sonderausstattung
Aussenausstattung
Landscape Amenities
Appliance Amenities
- Zimmer
- 4
- Bäder
- 2.00
- Ft2
- 3,078
- Grundstücksgröße ha
- 10.03
- Baujahr
- 1989
- Heizung
- Central,Electric
- Dachausführung
- Shingle
Virtueller Rundgang
19650 N River Road
Alva, Florida 33920
United States
Alva, Florida 33920
United States
Subdivision: ALVA
Landkreis: Lee
Kauf/Miete: For Sale
Objekt-ID: 2025024700
Aktualisiert: Montag, 15. Dezember 2025 09:45
Kategorie: Single Family
Eingetragen von Experience Real Estate Group L am Montag, 15. Dezember 2025 [For Sale]
- Zimmer
- 4
- Bäder
- 2.00
- Ft2
- 3,078
- Grundstücksgröße ha
- 10.03
- Heizung
- Central,Electric
- Klimaanlage
- CentralAir,CeilingFans,Electric
- Dachausführung
- Shingle
- Baujahr
- 1989
- Zimmer
- 4
- Bäder
- 2.00
- Ft2
- 3,078
- Grundstücksgröße ha
- 10.03
- Baujahr
- 1989
- Heizung
- Central,Electric
- Dachausführung
- Shingle
Virtueller Rundgang
19650 N River Road
Alva, Florida 33920
United States
Alva, Florida 33920
United States
Subdivision: ALVA
Landkreis: Lee
Kauf/Miete: For Sale
Objekt-ID: 2025024700
Aktualisiert: Montag, 15. Dezember 2025 09:45
Kategorie: Single Family
Eingetragen von Experience Real Estate Group L am Montag, 15. Dezember 2025 [For Sale]